Cho thuê nhà xưởng KCN PHƯỚC ĐÔNG, GÒ DẦU, TN 14.459m
14/01/260
Diện tích: 14459 m2
Địa chỉ: Tây Ninh Xem bản đồ
Thông tin thêm
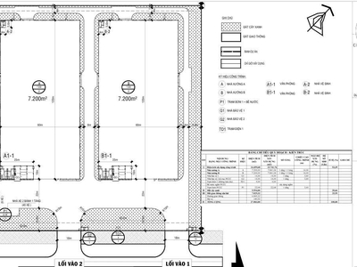
CHO THUÊ NHÀ XƯỞNG MỚI XÂY – KCN PHƯỚC ĐÔNG, GÒ DẦU, TN – 14.459m²
Thông tin chi tiết
Vị trí: Khu công nghiệp Phước Đông, Gò Dầu, Tây Ninh
Tổng diện tích khuôn viên: 27.083m²
Diện tích xây dựng: 14.459m², bao gồm:
Nhà xưởng A: 7.200m²
Nhà xưởng B: 7.200m²
Cùng các công trình phụ trợ khác
Tiện ích & hạ tầng:
Xưởng mới xây, thiết kế hiện đại, cao thoáng, nền chịu lực tốt
Hệ thống điện, nước, PCCC đạt tiêu chuẩn
Đường nội bộ rộng, container ra vào thuận tiện
Nằm trong KCN lớn, hạ tầng đồng bộ, an ninh đảm bảo
Phù hợp nhiều ngành nghề sản xuất hoặc kho bãi
Để biết thêm thông tin chi tiết vui lòng liên hệ:
CTY TNHH MTV QUÝ LỘC VƯỢNG
Hotline: 0931 769 444
Website: https://nhaxuongchinhchu.vn
- Mã tin: 34421502
Tăng lượt xem cho tin
* Giá chỉ từ 15.000đ
Hướng dẫn giao dịch an toàn
- Không thanh toán tiền trước khi nhận hàng
- Kiểm tra hàng cẩn thận trước khi mua
- Giao dịch ở nơi công cộng

Cho thuê nhà xưởng kcn mộc bài, bến cầu, tn 22.989m...
14/01 1Tây Ninh

Cho thuê nhà xưởng kcn phước đông, gò dầu, tn 14.459m
14/01 1Tây Ninh

Bán/cho thuê nhà xưởng kcn trảng bàng, tn 48.838m
18/12 9Tây Ninh

Cho thuê nhà xưởng gò dầu, tây ninh 12.410m
18/12 4Tây Ninh

Bán nhà xưởng ql22b, cẩm giang, gò dầu, tn 48.888m
12/12 8Tây Ninh





