Cho thuê nhà xưởng KCN NAM TÂN UYÊN, BD 31.400m
22/12/251
Diện tích: 31400 m2
Địa chỉ: H.Tân Uyên, Bình DươngXem bản đồ
Thông tin thêm
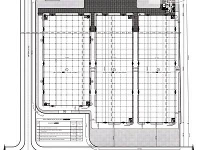
CHO THUÊ NHÀ XƯỞNG – KCN NAM TÂN UYÊN, BÌNH DƯƠNG – 31.400m²
Thông tin chi tiết
Vị trí: Khu Công Nghiệp Nam Tân Uyên, Tỉnh Bình Dương
Tổng diện tích khuôn viên: 50.556m²
Tổng diện tích xây dựng: 31.400m²
Trong đó:
Nhà xưởng 1: 10.224m² (72m × 142m), thiết kế 2 tầng
Nhà xưởng 2: 9.576m² (57m × 168m)
Nhà xưởng 3: 9.576m² (57m × 168m)
Nhà văn phòng: 372m², kết cấu 3 tầng
Bao gồm đầy đủ các công trình phụ trợ theo tiêu chuẩn KCN
Tiện ích & đặc điểm
Kết cấu nhà xưởng kiên cố, tiêu chuẩn công nghiệp
Đường nội bộ rộng rãi, xe container ra vào thuận tiện
Hệ thống hạ tầng điện – nước – PCCC đạt chuẩn
Vị trí trong KCN Nam Tân Uyên, an ninh tốt, môi trường sản xuất thuận lợi
Liên hệ
CÔNG TY TNHH MTV QUÝ LỘC VƯỢNG
Hotline: 0931 769 444
Website: https://nhaxuongchinhchu.vn
- Mã tin: 34402378
Tăng lượt xem cho tin
* Giá chỉ từ 15.000đ
Hướng dẫn giao dịch an toàn
- Không thanh toán tiền trước khi nhận hàng
- Kiểm tra hàng cẩn thận trước khi mua
- Giao dịch ở nơi công cộng

Cho thuê nhà xưởng uyên hưng, tân uyên, bd 9.100m...
26/12 1H.Tân Uyên, Bình Dương

Cho thuê nhà xưởng ccn phú chánh, tân uyên, bd 6.334m...
24/12 1Phú Chánh, H.Tân Uyên, Bình Dương

Cho thuê kho kcn nam tân uyên, bd 13.000m
23/12 1Khánh Bình, H.Tân Uyên, Bình Dương

Cho thuê nhà xưởng kcn nam tân uyên, bd 31.400m
22/12 1H.Tân Uyên, Bình Dương

Cho thuê nhà xưởng uyên hưng, tân uyên, bd 19.505m
22/12 2Uyên Hưng, H.Tân Uyên, Bình Dương

Cho thuê nhà xưởng tân uyên, bd 76.014m
16/12 1Vĩnh Tân, H.Tân Uyên, Bình Dương

Cho thuê xưởng tân vĩnh hiệp, tân uyên 31.027m
15/12 2Tân Vĩnh Hiệp, H.Tân Uyên, Bình Dương

Cho thuê 2000 m2 3000 m2 xưởng tân uyên pccc tự dộng ,...
07/12 5ĐT 747, Khánh Bình, H.Tân Uyên, Bình Dương

Cho thuê 3000m2 6000m2 xưởng tân uyên , pccc tự động , đường công ,...
07/12 4ĐT 742, Vĩnh Tân, H.Tân Uyên, Bình Dương

Cho thuê nhà xưởng tân định, bắc tân uyên, bd 4.800m...
02/12 3Tân Định, H.Tân Uyên, Bình Dương


