Cho thuê nhà xưởng KCN MỸ PHƯỚC, BẾN CÁT, BD 5.228m
08/12/255
Diện tích: 5228 m2
Địa chỉ: Mỹ Phước, H.Bến Cát, Bình DươngXem bản đồ
Thông tin thêm
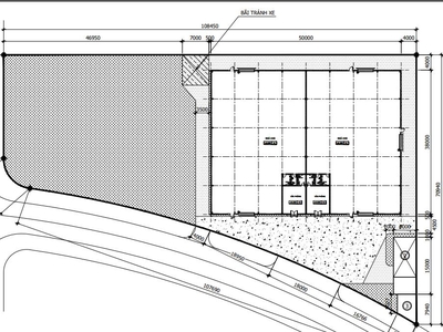
CHO THUÊ NHÀ XƯỞNG – KCN MỸ PHƯỚC, BẾN CÁT, BD – 5.228m²
Thông tin chi tiết
Vị trí: Khu Công Nghiệp Mỹ Phước, Bến Cát, Tỉnh Bình Dương
Tổng diện tích khuôn viên: 5.228m²
Diện tích xây dựng: 2.022m²
Trong đó
Nhà xưởng: 1.900m² (38m x 50m)
Văn phòng: 50m²
Công trình phụ trợ đầy đủ
Hạ tầng điện nước hoàn chỉnh
Nằm trong KCN, xe container ra vào thuận tiện
Đường nội khu rộng, phù hợp sản xuất – kho bãi
Tiện ích & đặc điểm
Xưởng phù hợp làm kho hoặc nhiều ngành nghề sản xuất
Kết cấu xưởng kiên cố, thông thoáng
Hệ thống PCCC theo tiêu chuẩn
Vị trí đẹp trong KCN, kết nối giao thông thuận lợi
Liên hệ
CÔNG TY TNHH MTV QUÝ LỘC VƯỢNG
Hotline: 0931 769 444
Website: https://nhaxuongchinhchu.vn
- Mã tin: 34389291
Tăng lượt xem cho tin
* Giá chỉ từ 15.000đ
Hướng dẫn giao dịch an toàn
- Không thanh toán tiền trước khi nhận hàng
- Kiểm tra hàng cẩn thận trước khi mua
- Giao dịch ở nơi công cộng

Cho thuê nhà xưởng kcn mỹ phước, bến cát, bình dương 11.370m
10/03 1Mỹ Phước, H.Bến Cát, Bình Dương

Cho thuê nhà xưởng kcn mỹ phước, bến cát, bình dương 2.022m
10/03 1Mỹ Phước, H.Bến Cát, Bình Dương

Cho thuê nhà xưởng cánh phú hòa, bến cát, bình dương 2.772m
03/03 5Chánh Phú Hòa, H.Bến Cát, Bình Dương

Cho thuê nhà xưởng kcn mỹ phước, bến cát, bình dương 11.928m
03/03 7Mỹ Phước, H.Bến Cát, Bình Dương

Cho thuê nhà xưởng kcn rạch bắp 17.420m
28/02 4An Điền, H.Bến Cát, Bình Dương

Cho thuê nhà xưởng bến cát, bình dương 10.000 m
12/02 12Mỹ Phước, H.Bến Cát, Bình Dương

Cho thuê nhà xưởng kcn mỹ phước 11.928m
07/02 5Mỹ Phước, H.Bến Cát, Bình Dương

Cho thuê nhà xưởng kcn rạch bắp, bình dương 17.420m
24/01 11An Điền, H.Bến Cát, Bình Dương

Cho thuê nhà xưởng mỹ phước, bình dương 10.000 m
24/01 11Mỹ Phước, H.Bến Cát, Bình Dương

Cho thuê nhà xưởng kcn quốc tế protrade, bến cát 27.000m...
22/01 14An Tây, H.Bến Cát, Bình Dương



