Cho thuê nhà xưởng KCN MỸ PHƯỚC 11.928m
07/02/261
Diện tích: 11928 m2
Địa chỉ: Mỹ Phước, H.Bến Cát, Bình DươngXem bản đồ
Thông tin thêm
CHO THUÊ NHÀ XƯỞNG – KCN MỸ PHƯỚC, BẾN CÁT, BD – 11.928m²
Thông tin chi tiết
Vị trí: Khu Công Nghiệp Mỹ Phước, Thị xã Bến Cát, Tỉnh Bình Dương
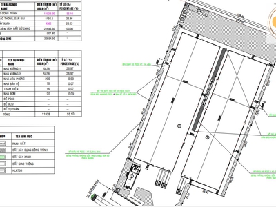
Tổng diện tích khuôn viên: 22.554m²
Tổng diện tích xây dựng: 11.928m², bao gồm:
Xưởng 1: 5.838m²
Xưởng 2: 5.838m²
Văn phòng (1 trệt, 1 lầu): 200m² x 2 = 400m²
Cùng các công trình phụ trợ khác
Tiện ích & hạ tầng
Nhà xưởng đang trong giai đoạn xây dựng, thiết kế hiện đại, kết cấu khung thép tiền chế, nền bê tông chịu tải tốt
Trang bị hệ thống PCCC tự động, điện – nước – thoát nước đạt tiêu chuẩn khu công nghiệp
Đường nội bộ rộng rãi, xe container ra vào thuận tiện
Vị trí trung tâm KCN Mỹ Phước – thuận lợi kết nối đến TP. Thủ Dầu Một, TP. Hồ Chí Minh, Tây Ninh và các khu công nghiệp lân cận
Phù hợp cho doanh nghiệp sản xuất, kho bãi, logistics, hoặc đầu tư cho thuê lại
Liên hệ để biết thêm thông tin chi tiết:
CÔNG TY TNHH MTV QUÝ LỘC VƯỢNG
Hotline: 0931 769 444
Website: https://nhaxuongchinhchu.vn
- Mã tin: 34438672
Tăng lượt xem cho tin
* Giá chỉ từ 15.000đ
Hướng dẫn giao dịch an toàn
- Không thanh toán tiền trước khi nhận hàng
- Kiểm tra hàng cẩn thận trước khi mua
- Giao dịch ở nơi công cộng

Cho thuê nhà xưởng kcn mỹ phước 11.928m
07/02 1Mỹ Phước, H.Bến Cát, Bình Dương

Cho thuê nhà xưởng kcn rạch bắp, bình dương 17.420m
24/01 3An Điền, H.Bến Cát, Bình Dương

Cho thuê nhà xưởng mỹ phước, bình dương 10.000 m
24/01 4Mỹ Phước, H.Bến Cát, Bình Dương

Cho thuê nhà xưởng kcn quốc tế protrade, bến cát 27.000m...
22/01 8An Tây, H.Bến Cát, Bình Dương

Cgo thuê nhà xưởng kcn mỹ phước, bến cát, bd 11.370m...
17/01 9H.Bến Cát, Bình Dương

Cho thuê nhà xưởng kcn mỹ phước, bến cát, bd 2.022m...
15/01 6Mỹ Phước, H.Bến Cát, Bình Dương

Cho thuê nà xưởng kcn mỹ phước, bến cát, bd 20.019m...
15/01 5Mỹ Phước, H.Bến Cát, Bình Dương

Cho thuê nhà xưởng chánh phú hòa, bến cát, bd 2.772m...
14/01 4Chánh Phú Hòa, H.Bến Cát, Bình Dương

Cho thuê nhà xưởng kcn mỹ phước, bến cát, bd 11.928m...
14/01 3Mỹ Phước, H.Bến Cát, Bình Dương

Cho thuê nhà xưởng hưng hòa, bến cát, bd 29.220m
13/01 3Hòa Lợi, H.Bến Cát, Bình Dương




