Bán nhà xưởng KCN BÀU BÀNG, BÌNH DƯƠNG 176.159m
02/02/2611
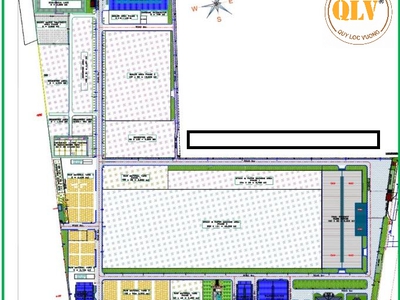
Diện tích: 176159 m2
Địa chỉ: H.Bàu Bàng, Bình DươngXem bản đồ
Thông tin thêm
BÁN NHÀ XƯỞNG – KCN BÀU BÀNG, BÌNH DƯƠNG – 176.159m²
Thông tin chi tiết
Vị trí: Khu Công Nghiệp Bàu Bàng, Huyện Bàu Bàng, Tỉnh Bình Dương
Tổng diện tích khuôn viên: 176.159m²
Diện tích xây dựng & sử dụng
Diện tích nhà xưởng xây dựng 26.860m², diện tích văn phòng 862m². Khuôn viên rộng rãi, thuận tiện bố trí dây chuyền sản xuất, kho bãi và mở rộng quy mô trong tương lai
Pháp lý & hiện trạng
Đất SKK đất sản xuất kinh doanh, thời hạn sử dụng đến năm 2057. Nhà xưởng hiện hữu, kết cấu kiên cố, có thể tiếp nhận sản xuất ngay
Tiện ích & đặc điểm
Nhà xưởng nằm trong KCN Bàu Bàng là khu công nghiệp trọng điểm của tỉnh Bình Dương, hạ tầng hoàn chỉnh, giao thông thuận lợi kết nối Quốc lộ 13 và các tuyến liên vùng. Phù hợp doanh nghiệp sản xuất quy mô lớn, đa ngành nghề, đầu tư ổn định lâu dài
Liên hệ
CÔNG TY TNHH MTV QUÝ LỘC VƯỢNG
Hotline: 0931 769 444
Website: https://nhaxuongchinhchu.vn
Vị trí
- Mã tin: 34436035
Tăng lượt xem cho tin
* Giá chỉ từ 15.000đ
Hướng dẫn giao dịch an toàn
- Không thanh toán tiền trước khi nhận hàng
- Kiểm tra hàng cẩn thận trước khi mua
- Giao dịch ở nơi công cộng

Cho thuê/bán nhà xưởng kcn bàu bàng, bd 6.000m
03/02 10H.Bàu Bàng, Bình Dương

Bán nhà xưởng kcn bàu bàng, bình dương 176.159m
02/02 11H.Bàu Bàng, Bình Dương
Các chuyên mục khác




