Cho thuê nhà xưởng tiêu chuẩn cao tại kcn song mây 25.000m2 Trảng Bom Đồng Nai
31/10/250
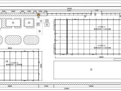
Diện tích: 25000 m2
Dự án: Bình Dương
Địa chỉ: Bình DươngXem bản đồ
Thông tin thêm
Tổng khuôn viên: 25.000 m²
Diện tích xây dựng: 9.344 m² gồm 02 xưởng riêng biệt:
- Xưởng 1:3.200 m²
- Nhà xưởng: 3.087,5 m²
- Văn phòng (1 trệt, 1 lầu): 225 m²
- Xưởng 2:6.144 m²
- Nhà xưởng: 5.844 m²
- Văn phòng (1 trệt, 1 lầu): 600 m²
Thông tin kỹ thuật nổi bật:
- Chiều cao lý tưởng: 12,5m đỉnh mái – 10m biên
- Trang bị PCCC tự động tiêu chuẩn quốc tế (Sprinkler + báo cháy hiện đại)
- 2 cẩu trục 5 tấn/xưởng, chạy dọc toàn bộ xưởng, cao độ 7,5m
- Kết cấu vững chắc, phù hợp sản xuất công nghiệp nặng và nhẹ
- Đang hoàn thiện giấy phép xây dựng, dự kiến bàn giao tháng 7/2026
Giá cho thuê hấp dẫn:
- Nhà xưởng: Từ 4 USD/m²/tháng
- Văn phòng: Từ 5 USD/m²/tháng
Vị trí đắc địa:
Nằm trong KCN Sông May, Trảng Bom, Đồng Nai — hạ tầng đồng bộ, giao thông thuận tiện, dễ kết nối các tuyến quốc lộ và cảng.
Phù hợp cho doanh nghiệp sản xuất, kho vận, logistics, hoặc làm trung tâm phân phối.
- Để biết thêm thông tin chi tiết về xưởng cho thuê vui lòng liên hệ
- CTY TNHH MTV QUÝ LÔC VƯỢNG
- Hotline: 0931 769 444
- Website: https://nhaxuongchinhchu.vn
Vị trí
- Mã tin: 34355500
Tăng lượt xem cho tin
* Giá chỉ từ 15.000đ
Hướng dẫn giao dịch an toàn
- Không thanh toán tiền trước khi nhận hàng
- Kiểm tra hàng cẩn thận trước khi mua
- Giao dịch ở nơi công cộng

Bán nhà xưởng kcn nhơn trạch, đn 11.330m
03/11 1TP HCM

Bán xưởng sản xuất full skc 3800m2 phường long bình, tp biên hòa, đồng nai...
02/11 1Đường 1, Long Bình, Đồng Nai

Cho thuê nhà xưởng trong kcn sóng thần 4.200m2 dĩ an, bình dương
01/11 1H.Dĩ An, Bình Dương

Cho thuê kho logistic 32.000 m2 kcn lộc an bình sơn, đồng nai
31/10 1Bình Dương

Bán nhà xưởng trảng bom, đồng nai 40.313m
31/10 1TP HCM

Cho thuê nhà xưởng 17.724 m2 kcn hố nai 3, đồng nai
30/10 1Bình Dương
Các chuyên mục khác








