Cho thuê nhà xưởng XUÂN LỘC, ĐN 20.665m
23/01/263
Diện tích: 20665 m2
Địa chỉ: Đồng NaiXem bản đồ
Thông tin thêm
CHO THUÊ NHÀ XƯỞNG – XUÂN LỘC, ĐN – 20.665m²
Thông tin chi tiết
Vị trí: Xuân Lộc, Tỉnh Đồng Nai
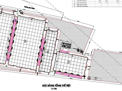
Tổng diện tích khuôn viên: 42.688m²
Tổng diện tích xây dựng: 20.665m²
Trong đó:
Nhà xưởng 1: 7.407m² (114.85m × 64.5m)
Nhà xưởng 2: 7.407m² (114.85m × 64.5m)
Nhà xưởng 3: 2.412m² (96.5m × 25m)
Nhà xưởng 4: 3.180m² (71.8m × 44m)
Nhà văn phòng: 400m² (1 trệt + 1 lầu) (20m × 10m)
Bao gồm các công trình phụ trợ và sân bãi bê tông đầy đủ.
Tiện ích & đặc điểm
Kết cấu nhà xưởng kiên cố, tiêu chuẩn công nghiệp.
Sân bãi bê tông hoàn thiện.
Đường nội bộ rộng, xe container ra vào thuận tiện.
Hệ thống điện – nước – PCCC đạt chuẩn.
Vị trí Xuân Lộc, Đồng Nai, an ninh tốt, thuận lợi sản xuất và tuyển lao động.
Liên hệ
CÔNG TY TNHH MTV QUÝ LỘC VƯỢNG
Hotline: 0931 769 444
Website: https://nhaxuongchinhchu.vn
- Mã tin: 34403379
Tăng lượt xem cho tin
* Giá chỉ từ 15.000đ
Hướng dẫn giao dịch an toàn
- Không thanh toán tiền trước khi nhận hàng
- Kiểm tra hàng cẩn thận trước khi mua
- Giao dịch ở nơi công cộng

Cho thuê nhà xưởng ccn vlxd hố nai, trảng bom, đồng nai 21.595m
02/03 2Đồng Nai

Cho thuê xưởng 1584m2 kcn long thành, đồng nai
28/02 2Đường 1, Tam An, Đồng Nai

Cho thuê xưởng 1700m2 phường tân hòa, đồng nai giá 60tr
28/02 1Đường 1, Tân Hòa, Đồng Nai

Cho thuê nhà xưởng kcn hố nai 3, trảng bom, đồng nai 17.724m
28/02 2Đồng Nai

Cho thuê xưởng kcn biên hòa 2 3.452m
28/02 1Đồng Nai

Cho thuê xưởng 2000m2 kcn amata tp biên hòa, đồng nai giá 6đô/m2
26/02 4Đường Quốc lộ 1A, Hố Nai 3, Đồng Nai

Cho thuê xưởng 2640m2 kcn long thành đồng nai
26/02 4Đường 51, Tam An, Đồng Nai

Cho thuê nhà xưởng kcn lộc an, đồng nai 56.000m
25/02 4Đồng Nai

Cho thuê kho logistics kcn lộc an bình sơn, long thành,...
25/02 5Đồng Nai

Cho thuê xưởng kcn hố nai, đn 55.928m
24/02 2Đồng Nai





