Cho thuê nhà xưởng KCN SÔNG MÂY, ĐN 9.344m
21/01/265
Diện tích: 9344 m2
Địa chỉ: Đồng NaiXem bản đồ
Thông tin thêm
CHO THUÊ NHÀ XƯỞNG – KCN SÔNG MÂY, ĐN – 9.344m²
Thông tin chi tiết
Vị trí: Khu Công Nghiệp Sông Mây, Huyện Trảng Bom, Tỉnh Đồng Nai
Tổng diện tích khuôn viên: 25.000m²
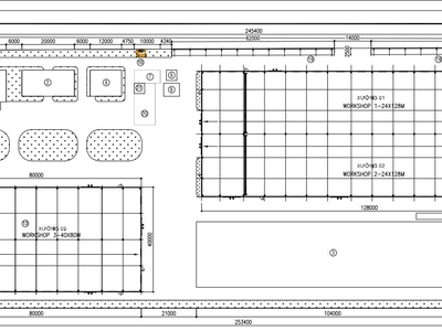
Tổng diện tích xây dựng: 9.344m² (gồm 2 nhà xưởng)
Tiến độ: Đang hoàn thiện giấy phép xây dựng, dự kiến bàn giao tháng 7/2026
Quy mô công trình
Xưởng 1: 3.200m² (nhà máy 3.087,5m², văn phòng 225m² – 1 trệt 1 lầu trong xưởng)
Xưởng 2: 6.144m² (nhà máy 5.844m², văn phòng 600m² – 1 trệt 1 lầu trong xưởng)
Chiều cao: 12,5m đỉnh mái – 10m biên
Trang bị 2 cẩu trục 5 tấn/xưởng, chạy dọc toàn bộ xưởng ở cao độ 7,5m
Tiêu chuẩn kỹ thuật
Hệ thống PCCC tự động chuẩn quốc tế (Sprinkler + báo cháy hiện đại)
Kết cấu khung thép tiền chế, sàn bê tông chịu tải cao, nền phẳng tiêu chuẩn xuất khẩu
Hệ thống điện 3 pha công suất lớn, thoát nước – cấp nước đạt chuẩn KCN
Đường nội bộ rộng, container 40 feet ra vào thuận tiện
Liên hệ
CÔNG TY TNHH MTV QUÝ LỘC VƯỢNG
Hotline: 0931 769 444
Website: https://nhaxuongchinhchu.vn
- Mã tin: 34427547
Tăng lượt xem cho tin
* Giá chỉ từ 15.000đ
Hướng dẫn giao dịch an toàn
- Không thanh toán tiền trước khi nhận hàng
- Kiểm tra hàng cẩn thận trước khi mua
- Giao dịch ở nơi công cộng

Cho thuê nhà xưởng ccn vlxd hố nai, trảng bom, đồng nai 21.595m
02/03 2Đồng Nai

Cho thuê xưởng 1584m2 kcn long thành, đồng nai
28/02 2Đường 1, Tam An, Đồng Nai

Cho thuê xưởng 1700m2 phường tân hòa, đồng nai giá 60tr
28/02 1Đường 1, Tân Hòa, Đồng Nai

Cho thuê nhà xưởng kcn hố nai 3, trảng bom, đồng nai 17.724m
28/02 2Đồng Nai

Cho thuê xưởng kcn biên hòa 2 3.452m
28/02 1Đồng Nai

Cho thuê xưởng 2000m2 kcn amata tp biên hòa, đồng nai giá 6đô/m2
26/02 4Đường Quốc lộ 1A, Hố Nai 3, Đồng Nai

Cho thuê xưởng 2640m2 kcn long thành đồng nai
26/02 4Đường 51, Tam An, Đồng Nai

Cho thuê nhà xưởng kcn lộc an, đồng nai 56.000m
25/02 4Đồng Nai

Cho thuê kho logistics kcn lộc an bình sơn, long thành,...
25/02 5Đồng Nai

Cho thuê xưởng kcn hố nai, đn 55.928m
24/02 2Đồng Nai




