Cho thuê dự án nhà xưởng KCN LONG ĐỨC, ĐN 16.666 m
03/02/260
Diện tích: 16666 m2
Địa chỉ: Đồng NaiXem bản đồ
Thông tin thêm
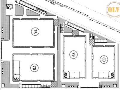
CHO THUÊ DỰ ÁN NHÀ XƯỞNG – KCN LONG ĐỨC, LONG THÀNH, ĐN – 16.666 m²
Thông tin chi tiết
Vị trí: Khu Công Nghiệp Long Đức, Huyện Long Thành, Tỉnh Đồng Nai
Tổng diện tích khuôn viên: 31.000m²
Hiện có 4 nhà xưởng đã xây dựng hoàn thiện, thông tin chi tiết từng xưởng như sau:
Xưởng 1:
Khuôn viên: 4.800m²
Diện tích xưởng: 1.908m²
Văn phòng: 384m²
Trạm điện: 400 KVA
Xưởng 2:
Khuôn viên: 3.874m²
Diện tích xưởng: 1.594m²
Văn phòng: 208m²
Trạm điện: 400 KVA
Xưởng 3:
Khuôn viên: 3.500m²
Diện tích xưởng: 1.384m²
Văn phòng: 200m²
Trạm điện: 400 KVA
Xưởng 4:
Khuôn viên: 3.500m²
Diện tích xưởng: 1.384m²
Văn phòng: 200m²
Trạm điện: 400 KVA
Tiện ích & hạ tầng
Dự án nằm trong Khu Công Nghiệp Long Đức – hạ tầng hoàn thiện, đồng bộ, sẵn sàng hoạt động ngay
Nhà xưởng thiết kế hiện đại, kết cấu kiên cố, tối ưu công năng sử dụng
Trang bị hệ thống điện 3 pha, nước, PCCC tự động đạt chuẩn KCN
Đường nội bộ rộng, xe container ra vào thuận tiện
Vị trí chiến lược, kết nối nhanh đến sân bay Long Thành, cao tốc TP.HCM – Long Thành – Dầu Giây và QL51
Phù hợp cho doanh nghiệp sản xuất, kho bãi, logistics hoặc đầu tư cho thuê lại
Liên hệ để biết thêm thông tin chi tiết:
CÔNG TY TNHH MTV QUÝ LỘC VƯỢNG
Hotline: 0931 769 444
Website: https://nhaxuongchinhchu.vn
- Mã tin: 34436750
Tăng lượt xem cho tin
* Giá chỉ từ 15.000đ
Hướng dẫn giao dịch an toàn
- Không thanh toán tiền trước khi nhận hàng
- Kiểm tra hàng cẩn thận trước khi mua
- Giao dịch ở nơi công cộng

Cho thuê dự án nhà xưởng kcn long đức, đn 16.666...
03/02 1Đồng Nai

Cho thuê kho logistics kcn lộc an bình sơn ...
03/02 1Đồng Nai

Cho thuê nhà xưởng kcn long thành, đồng nai 51.346m
03/02 1Đồng Nai

Cho thuê nhà xưởng phước tân, biên hòa, đn 5.600m
02/02 1Đồng Nai

Bán nhà xưởng kcn hố nai 3, đồng nai 10.991m
29/01 3Đồng Nai

Cho thuê xưởng cụm công nghiệp thạnh phú vĩnh cửu 24.000 m2 chỉ 3 usd/m2...
26/01 4Đường 768, Thạnh Phú, Đồng Nai

Cho thuê xưởng cụm công nghiệp thạnh phú vĩnh cửu 24.000 m2 chỉ 3 usd/m2...
26/01 5Đường 768, Thạnh Phú, Đồng Nai

Cho thuê nhà xưởng kcn thạnh phú, vĩnh cửu, đn 4.044m...
24/01 5Đồng Nai

Cho thuê kho kcn biên hòa, đn 5.500m
24/01 3Đồng Nai

Cho thuê nhà xưởng xuân lộc, đn 20.665m
23/01 3Đồng Nai






