Cho thuê nhà xưởng KCN ĐỒNG XOÀI, BP 8.279m
21/01/264
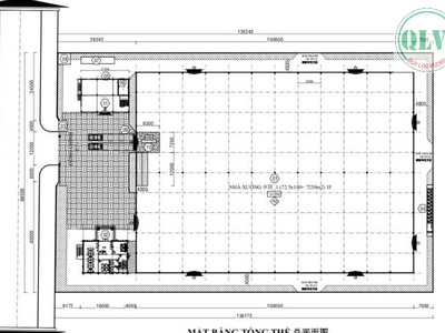
Diện tích: 8279 m2
Địa chỉ: Bình PhướcXem bản đồ
Thông tin thêm
CHO THUÊ NHÀ XƯỞNG – KCN ĐỒNG XOÀI, BP – 8.279m²
Thông tin chi tiết
Vị trí: Khu Công Nghiệp Đồng Xoài, Tỉnh Bình Phước
Tổng diện tích khuôn viên: 11.752m²
Diện tích xây dựng: 8.279m²
Trong đó
Diện tích nhà xưởng: 7.250m²
Văn phòng 2,5 tầng: gần 400m²
Tiện ích & đặc điểm
Xưởng nằm trong KCN, hạ tầng hoàn chỉnh
Phù hợp sản xuất hoặc làm kho bãi
Đường nội khu rộng, container di chuyển thuận tiện
Điện – nước đầy đủ, công trình phụ trợ hoàn thiện
Liên hệ
CÔNG TY TNHH MTV QUÝ LỘC VƯỢNG
Hotline: 0931 769 444
Website: https://nhaxuongchinhchu.vn
- Mã tin: 34404575
Tăng lượt xem cho tin
* Giá chỉ từ 15.000đ
Hướng dẫn giao dịch an toàn
- Không thanh toán tiền trước khi nhận hàng
- Kiểm tra hàng cẩn thận trước khi mua
- Giao dịch ở nơi công cộng

Cho thuê nhà xưởng ccn tiến hưng, đồng xoài, bp 14.789m...
22/01 3Bình Phước

Cho thuê nhà xưởng kcn đồng xoài, bp 8.279m
21/01 4Bình Phước

Cho thuê nhà xưởng tân phú, đồng phú, bp 14.000m
15/01 2Bình Phước

Cho thuê nhà xưởng kcn minh hưng sikico, hớn quản, bp ...
10/01 6Bình Phước

Cho thuê nhà xưởng ccn tiến hưng, đồng xoài, bp 18.936m...
09/01 3Bình Phước

Cho thuê nhà xưởng đồng phú, bp 10.000m
08/01 3Bình Phước

Cho thuê nhà xưởng ccn tiến hưng, đồng xoài, bp 28.800m...
07/01 5Bình Phước

Cho thuê nhà xưởng kcn minh hưng, chơn thành, bp 39.154m...
06/01 5Bình Phước

Cho thuê nhà xưởng kcn becamex chơn thành, bp 38.837m
31/12 6Bình Phước

Cho thuê nhà xưởng ccn tiến hưng, đồng xoài, bp 18.936m...
31/12 7Bình Phước





