Cho thuê nhà xưởng CCN TIẾN HƯNG, ĐỒNG XOÀI, BP 18.936m
31/12/251
Diện tích: 18936 m2
Địa chỉ: Bình PhướcXem bản đồ
Thông tin thêm
CHO THUÊ NHÀ XƯỞNG – CCN TIẾN HƯNG, ĐỒNG XOÀI, BP – 18.936m²
Thông tin chi tiết
Vị trí: Cụm Công Nghiệp Tiến Hưng, TP. Đồng Xoài, Tỉnh Bình Phước
Tổng diện tích khuôn viên: 14.789m²
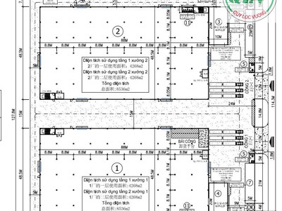
Tổng diện tích xây dựng: 18.936m²
Mô hình: 02 nhà xưởng riêng biệt, đối diện nhau, khoảng cách 15m theo chiều dài xưởng
Quy mô nhà xưởng
Khuôn viên gồm 02 nhà xưởng sản xuất và khối văn phòng độc lập cho từng xưởng, bố trí khoa học, thuận tiện vận hành
Nhà xưởng 1
Diện tích xây dựng: 9.236m²
Kết cấu: 01 trệt + 01 lầu
Diện tích sàn xưởng: 4.268m² + 4.268m²
Diện tích văn phòng: 700m² (3,5 tầng)
Trang bị: 02 thang máy
Nguồn điện: Bình điện 400 KVA
Tiện ích đi kèm: Bãi xe công nhân và các công trình phụ trợ đầy đủ
Nhà xưởng 2
Diện tích xây dựng: 9.236m²
Kết cấu: 01 trệt + 01 lầu
Diện tích sàn xưởng: 4.268m² + 4.268m²
Diện tích văn phòng: 700m² (3,5 tầng)
Trang bị: 02 thang máy
Nguồn điện: Bình điện 400 KVA
Tiện ích đi kèm: Bãi xe công nhân và các công trình phụ trợ đầy đủ
Tiện ích & đặc điểm
Hai xưởng bố trí đối diện, thuận tiện vận hành song song hoặc tách biệt từng nhà máy
Kết cấu xưởng chắc chắn, phù hợp sản xuất đa ngành
Khuôn viên gọn gàng, có bãi xe và hạ tầng phụ trợ hoàn chỉnh
Hạ tầng CCN Tiến Hưng đồng bộ, giao thông nội bộ thông thoáng
Vị trí & kết nối
Nằm trong Cụm Công Nghiệp Tiến Hưng, TP. Đồng Xoài, Bình Phước
Thuận tiện kết nối các tuyến giao thông chính khu vực
Phù hợp doanh nghiệp sản xuất, gia công, kho vận và logistics
Liên hệ
CÔNG TY TNHH MTV QUÝ LỘC VƯỢNG
Hotline: 0931 769 444
Website: https://nhaxuongchinhchu.vn
- Mã tin: 34409785
Tăng lượt xem cho tin
* Giá chỉ từ 15.000đ
Hướng dẫn giao dịch an toàn
- Không thanh toán tiền trước khi nhận hàng
- Kiểm tra hàng cẩn thận trước khi mua
- Giao dịch ở nơi công cộng

Cho thuê nhà xưởng kcn becamex chơn thành, bp 38.837m
31/12 1Bình Phước

Cho thuê nhà xưởng ccn tiến hưng, đồng xoài, bp 18.936m...
31/12 1Bình Phước

Cho thuê nhà xưởng ccn tiến hưng, đồng xoài, bp 28.800m...
31/12 1Bình Phước

Cho thuê nhà xưởng kcn đồng xoài, bp 27.281m
30/12 1Bình Phước

Cho thuê nhà xưởng kcn đồng xoài, bp 4.817m
30/12 3Bình Phước

Cho thuê nhà xưởng chơn thành, bp 2.000m
29/12 2Bình Phước

Bán đất kcn becamex, bp 310.000m
29/12 1Bình Phước

Cho thuê nhà xưởng ccn tiến hưng, đồng xoài, bp 18.936m...
25/12 4Bình Phước

Cho thuê nhà xưởng kcn đồng xoài, bp 8.279m
24/12 3Bình Phước

Cho thuê nhà xưởng kcn đồng xoài, bình phước 8.279m
10/12 4Bình Phước




