Cho thuê nhà xưởng CCN TIẾN HƯNG, ĐỒNG XOÀI, BP 18.936m
30/01/2616
Diện tích: 18936 m2
Địa chỉ: Bình PhướcXem bản đồ
Thông tin thêm
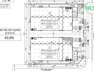
CHO THUÊ NHÀ XƯỞNG – CCN TIẾN HƯNG, ĐỒNG XOÀI, BP – 18.936m²
Thông tin chi tiết
Vị trí: Cụm Công Nghiệp Tiến Hưng, TP. Đồng Xoài, Bình Phước
Tổng diện tích khuôn viên: 14.789m²
Tổng diện tích xây dựng: 18.936m²
Trong đó
Nhà xưởng 1: DTXD 9.236m² (1 trệt 1 lầu: 4.268m² + 4.268m²), văn phòng 700m² (3.5 tầng), có 2 thang máy, bình điện 400 KVA, bãi xe công và các công trình phụ trợ khác
Nhà xưởng 2: DTXD 9.236m² (1 trệt 1 lầu: 4.268m² + 4.268m²), văn phòng 700m² (3.5 tầng), có 2 thang máy, bình điện 400 KVA, bãi xe công và các công trình phụ trợ khác
Tiện ích & đặc điểm
Kết cấu nhà xưởng kiên cố, thiết kế 2 tầng, phù hợp đa ngành nghề
Đường nội bộ rộng rãi, xe container ra vào thuận tiện
Hệ thống hạ tầng điện – nước – PCCC đạt chuẩn
Nằm trong CCN Tiến Hưng, an ninh tốt, thuận lợi sản xuất
Liên hệ
CÔNG TY TNHH MTV QUÝ LỘC VƯỢNG
Hotline: 0931 769 444
Website: https://nhaxuongchinhchu.vn
- Mã tin: 34405086
Tăng lượt xem cho tin
* Giá chỉ từ 15.000đ
Hướng dẫn giao dịch an toàn
- Không thanh toán tiền trước khi nhận hàng
- Kiểm tra hàng cẩn thận trước khi mua
- Giao dịch ở nơi công cộng

Cho thuê nhà xưởng kcn đồng xoài, bình phước 8.279m
11/03 1Bình Phước

Cho thuê nhà xưởng kcn minh hưng, chơn thành, bp 39.154m...
07/03 9Bình Phước

Cho thuê nhà xưởng ccn tiến hưng, đồng xoài, bình phước 18.936m
06/03 3Bình Phước

Cho thuê nhà xưởng kcn becamex chơn thành, bình phước 38.837m2
05/03 2Bình Phước

Cho thuê nhà xưởng khu công nghiệp đồng phú 22.525m
05/03 6Bình Phước

Cho thuê đất nhà xưởng hớn quản, bình phước 5.000m
04/03 5Bình Phước

Cho thuê nhà xưởng đồng phú, bình phước 10.000m
02/03 5Bình Phước

Cho thuê nhà xưởng kcn bắc đồng phú 17.409m
27/02 5Bình Phước

Cho thuê nhà xưởng đồng phú, bp 10.000m
13/02 4Bình Phước

Cho thuê nhà xưởng kcn minh hưng sikiko 56.077m2
07/02 8Bình Phước






