Cho thuê nhà xưởng KCN ĐỒNG XOÀI, BP 27.281m
07/11/250
Diện tích: 27281 m2
Địa chỉ: Bình PhướcXem bản đồ
Thông tin thêm
CHO THUÊ NHÀ XƯỞNG – KCN ĐỒNG XOÀI, BÌNH PHƯỚC – 27.281m²
Thông tin chi tiết
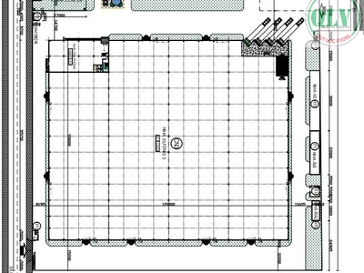
Vị trí: Khu Công Nghiệp Đồng Xoài, Tỉnh Bình Phước
Tổng diện tích khuôn viên: 42.945m²
Tổng diện tích xây dựng: 27.281m²
Đất SKK, đóng tiền 1 lần, thời hạn sử dụng đến năm 2059
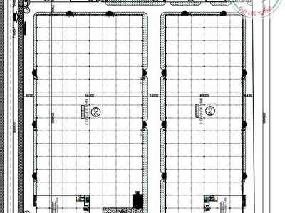
Quy mô xây dựng
Giai đoạn 1
Quỹ đất: 23.019m²
Diện tích xây dựng: 14.877m²
Xưởng 1: 6.144m² (48×128m)
Xưởng 2: 8.448m² (66×128m)
Giai đoạn 2
Quỹ đất: 19.888m²
Diện tích xây dựng: 12.404m²
Xưởng 3 và văn phòng: 12.000m² (100×120m)
Còn lại là các công trình phụ trợ
Tiện ích & đặc điểm
Kết cấu nhà xưởng kiên cố, khung thép tiền chế, nền bê tông chịu tải cao
Hệ thống PCCC đạt tiêu chuẩn KCN
Điện 3 pha công suất lớn, nước máy đầy đủ
Giao thông nội bộ thông thoáng, xe container ra vào thuận tiện
Phù hợp cho sản xuất, kho bãi, chế biến hoặc logistic
Vị trí thuận lợi
Nằm trong KCN Đồng Xoài – khu công nghiệp trọng điểm của Bình Phước, kết nối trực tiếp với Quốc lộ 14, cao tốc TP Hồ Chí Minh – Chơn Thành – Đắk Nông, thuận tiện vận chuyển hàng hóa và kết nối vùng
Liên hệ
CÔNG TY TNHH MTV QUÝ LỘC VƯỢNG
Hotline: 0931 769 444
Website: https://nhaxuongchinhchu.vn
- Mã tin: 34361871
Tăng lượt xem cho tin
* Giá chỉ từ 15.000đ
Hướng dẫn giao dịch an toàn
- Không thanh toán tiền trước khi nhận hàng
- Kiểm tra hàng cẩn thận trước khi mua
- Giao dịch ở nơi công cộng

Cho thuê nhà xưởng kcn minh hưng sikiko, bp 23.281m
03/12 1Bình Phước

Cho thuê nhà xưởng kcn đồng xoài 3, tiến hưng, bp ...
03/12 1Bình Phước

Cho thuê nhà xưởng đồng xoài, bp 53.000m
26/11 1Bình Phước

Cho thuê nhà xưởng đồng phú, bp 61.951m
26/11 1Bình Phước

Cho thuê nhà xưởng ccn tiến hưng, đồng xoài, bp 14.789m...
24/11 1Bình Phước

Cho thuê nhà xưởng lộc ninh, bp 26.057m
19/11 1Bình Phước

Cho thuê nhà xưởng kcn minh hưng sikiko, hớn quản, bp ...
10/11 1Bình Phước

Cho thuê nhà xưởng kcn becamex chơn thành, bp 38.837m
08/11 1Bình Phước

Cho thuê nhà xưởng kcn đồng xoài, bp 27.281m
07/11 1Bình Phước

Cho thuê nhà xưởng kcn đồng xoài, bp 4.817m
07/11 1Bình Phước




